Einzelhandel / Miete / Diepholz
Immobilie teilen
Drucken

Großzügige Gewerbefläche in Innenstadtlage Mitte Fußgängerzone von Diepholz

Objektdaten
ID 115872
  • Kaltmiete 1.950,00 €
  • Nebenkosten 250,00 €
  • Standort 49356 Diepholz
  • Bezugsdatum nach Vereinbarung
Lagebeschreibung:
Innenstadtlage Mitte Fußgängerzone von Diepholz!
Objektbeschreibung:
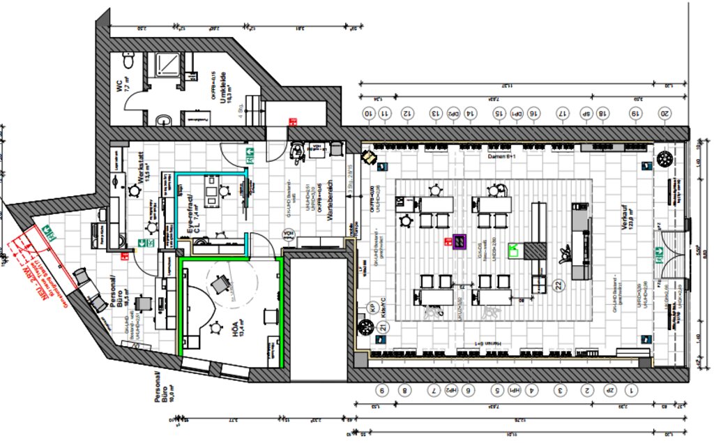
Großzügige Verkaufs-/Büro-/Praxisfläche mit viel Potenzial!

Aufteilung: Verkaufsfläche, Flur/Wartebereich, Umkleide mit Dusche, WC, 2 Büroräume, Personalraum
Die Einheit ist vielseitig nutzbar.
Kaution:
3.900,00 €
Courtage (vom Mieter / Käufer zu zahlen):
2,38
Energieausweis:
Energieart:
VERBRAUCH
Energieverbrauchswert:
55.5 kWh/(m²a)
Energieträger:
Gas
Energieeffizienzklasse:
B
Direktkontakt

Mit dem Versenden des Formulars willige ich ein, dass meine Angaben zur Kontaktaufnahme und Zuordnung für eventuelle Rückfragen dauerhaft gespeichert werden. Hinweis: Diese Einwilligung können Sie jederzeit mit Wirkung für die Zukunft widerrufen, indem Sie eine E-Mail an info@haskamp-immobilien.de schicken.