Büros und Praxen / Miete / Lohne (Oldenburg)
Immobilie teilen
Drucken

Praxisräume zur Miete im Herzen von Lohne!

Objektdaten
ID 142459
  • Kaltmiete 700,00 €
  • Nebenkosten 150,00 €
  • Nutzfläche 121,90 m²
  • Standort 49393 Lohne (Oldenburg)
  • Bezugsdatum ab sofort
Lagebeschreibung:
Die Praxis befindet sich in einer zentralen Lage in Lohne!
Objektbeschreibung:
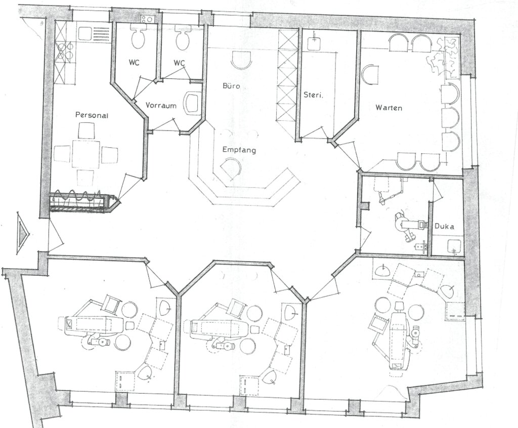
Empfangsraum/Flur, 4 Büro- bzw. Behandlungsräume, Sozialraum/Küche, WC-Anlagen, Abstellraum/Archiv, Balkon
Nach Rücksprache mit dem Eigentümer können Umbaumaßnahmen sowie Renovierungs arbeiten übernommen werden. Innenliegende Wände können zum Teil entfernet werden bzw. neue Trennwände können eingebaut werden.
Bilder können vom aktuellen Zustand abweichen.
Ausstattung:
Das Gebäude verfügt über einen Aufzug, der den Zugang zu den Praxisräumen erleichtert. Die Heizung erfolgt über eine Gasheizung, die für eine komfortable Raumtemperatur sorgt. Die Räumlichkeiten sind in einem gepflegten Zustand.
Kaution:
1.400,00 €
Courtage (vom Mieter / Käufer zu zahlen):
2,38 %
Energieausweis:
Energieart:
BEDARF
Energieverbrauchswert:
106.5 kWh/(m²a)
Energieeffizienzklasse:
E
Direktkontakt

Mit dem Versenden des Formulars willige ich ein, dass meine Angaben zur Kontaktaufnahme und Zuordnung für eventuelle Rückfragen dauerhaft gespeichert werden. Hinweis: Diese Einwilligung können Sie jederzeit mit Wirkung für die Zukunft widerrufen, indem Sie eine E-Mail an info@haskamp-immobilien.de schicken.