Hallen/ Lager/ Produktion / Miete / Dinklage
Immobilie teilen
Drucken

Lager und Produktionshalle zur Miete in Dinklage!

Objektdaten
ID 140564
  • Kaltmiete 2.250,00 €
  • Nebenkosten 150,00 €
  • Baujahr 2002
  • Standort 49413 Dinklage
  • Bezugsdatum 01.01.2026
Lagebeschreibung:
Das Objekt befindet sich im Gewerbegebiet von Dinklage in Autobahnnähe!
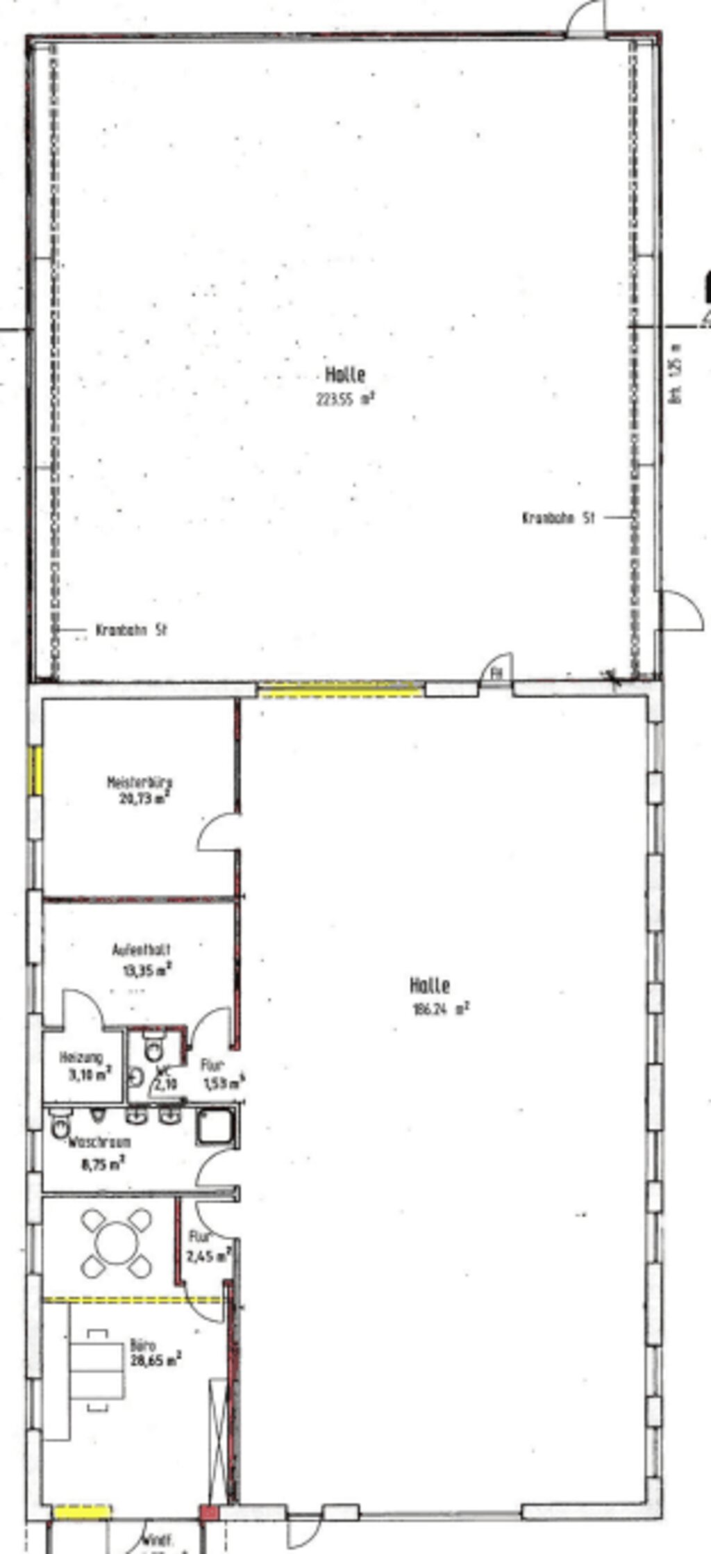
Objektbeschreibung:
Die angebotene Industriehalle / Produktionshalle befindet sich in Dinklage. Die Halle hat eine großzügige Fläche, die ideal für verschiedene industrielle Anwendungen geeignet ist. Bei Bedarf können noch Lagerräume mit einer Größe von ca. 120,00 m² mit gemietet werden.
Ausstattung:
Die Halle ist mit einer Kranbahn ausgestattet. Der Karn ist laut Beschreibung für ein Gewicht von 3,2 t ausgelegt. Die Beheizung erfolgt über eine effiziente Gasheizung.
Sanitärräume sowie Büros können nach Vereinbarung renoviert werden.
Courtage (vom Mieter / Käufer zu zahlen):
2,38 %
Energieausweis:
in Beantragung
Direktkontakt

Mit dem Versenden des Formulars willige ich ein, dass meine Angaben zur Kontaktaufnahme und Zuordnung für eventuelle Rückfragen dauerhaft gespeichert werden. Hinweis: Diese Einwilligung können Sie jederzeit mit Wirkung für die Zukunft widerrufen, indem Sie eine E-Mail an info@haskamp-immobilien.de schicken.